初めての方へ
お問い合わせ
サイトマップ
トップページ
>
施工例
> I様邸
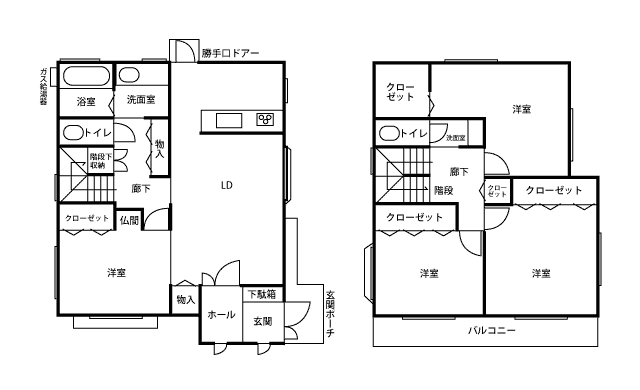
I様邸
海の街の大通り沿い、真っ白な外観が印象的な、お子さん3人とお母様の暮らす木造2階建てのお住まいです。こだわりの壁は珪藻土、外部塗り壁。こだわりの白い壁には、排気ガスなどで汚れないように水性光触媒トップコートでカバーしました。床暖房で寒い冬でも過ごしやすく、バリアフリー、二重ガラスを使用する事で、快適な生活を実現しています。
I様邸
海の街の大通り沿い、真っ白な外観が印象的な、お子さん3人とお母様の暮らす木造2階建てのお住まいです。こだわりの壁は珪藻土、外部塗り壁。こだわりの白い壁には、排気ガスなどで汚れないように水性光触媒トップコートでカバーしました。床暖房で寒い冬でも過ごしやすく、バリアフリー、二重ガラスを使用する事で、快適な生活を実現しています。